Thông số kỹ thuật tổng thể máy:
| Mã máy phát điện | ZBYC650GF | Tỷ lệ tiêu thụ nhiên liệu 110% | 217.0 g/kW.h |
| Công suất chính/
Công suất dự phòng |
563KVA/450Kw
650KVA/520Kw |
Tỷ lệ tiêu thụ nhiên liệu 100% | \/kW.h |
| Điện áp định mức | 400V | Tỷ lệ tiêu thụ nhiên liệu 75% | 206.0 g/kW.h |
| Dòng điện định mức | 810A | Tỷ lệ tiêu thụ nhiên liệu 50% | 205.0 g/kW.h |
| Loại điện | 3 pha, 4 dây | Tỷ lệ tiêu thụ dầu | ≤ 0.3% |
| Tốc độ định mức | 1500 vòng/phút | Chế độ khởi động | Khởi động bằng dòng điện một chiều |
| Giảm điện áp trạng thái ổn định | ≤± 0,5 % | Điện áp khởi động của Acquy | 24V |
| Mất cân bằng điện áp | 1% | Thời gian khởi động | 4-30 giây |
| Giảm tần số | ≤ 2% | Hệ số công suất(cos) | 0.8 |
| Dải tần số ổn định | ≤ 0.5% | Giới hạn tiếng ồn | ≤ 105 dB |
| Độ sai lệch điện áp tức thời | Khi giảm tải: tăng tối đa 20%.
Khi tăng tải: giảm tối đa 7% |
Thời gian phục hồ điện áp | 4 giây |
| Sự sai lệch tần số tức thời | Khi giảm tải: tăng tối đa 10%.
Khi tăng tải: giảm tối đa 7%. |
Thời gian phục hồi tần số | 3 giây |
| Tốc độ hút gió | 206 m³ / phút | Tốc độ khí thải | 457 m³ / phút |
| Giới hạn nhiệt độ khí thải (Sau khi hình thành xoáy) | 550 ℃ | Bộ tản nhiệt | Két nước dạng lá đồng, thiết kế cho môi trường lên tới 50 ℃ |
| Tổng dung tich dầu bôi trơn | 52 lít | Dung tích nước làm mát | 64 lít |
Thông số chi tiết động cơ, máy phát:
| ĐỘNG CƠ | MÁY PHÁT | ||
| Mã động cơ | YC6T780-D31 | Mã máy phát | AMPE-IE3-C |
| Nguồn gốc | YUCHAI | Nguồn gốc | SHANGHAI LAFERT |
| Công suất chính/Công suất chờ | \/572 KW | Công suất định mức | 450 KW |
| Loại làm mát | Làm mát bằng dung dịch kín | Điều chỉnh điện áp | Điều chỉnh tự động |
| Cửa hút gió | Làm máy trung gian bằng áp suất | Điện áp định mức | 400V |
| Xi-lanh | 6 xi lanh thẳng hàng | Tần số định mức | 50Hz |
| Đường kính xi lanh/hành trình piston | 145mm/165mm | Khả năng quá tải | 110%/1 giờ |
| Dung tích động cơ | 16.35 L | Khả năng quá dòng | 120% / 2 phút |
| Tỷ lệ nén | 15:1 | Cấp tăng nhiệt của cuộn dây | F |
| Hệ thống nhiên liệu | Phun trực tiếp | Cấp cách điện | H |
| Nhiệt độ khí tải sau tăng áp | ≤ 550 ℃ | Thời gian ngắn mạch liên tục | 3 ln trong 2 giây |
| Phương pháp bôi trơn | Bôi trơn bằng dầu bôi trơn | Hiệu suất tải tối đa (PD=0.8) | 95.6% |
| Phương pháp điều chỉnh tốc | Bộ điều khiển điện tử | Cấp bảo vệ | IP23 |
| Thông số kỹ thuật khí thải | DN250 | Khả năng vượt tốc độ | 1800 vòng/phút |
| Giới hạn áp suất ngược khí thải | 10kPa | Số vòng bi | 1 |
| Điện áp tiêu chuẩn | 24V | Cuộn dây stato | 2/3 picth |
Hệ thống điều khiển: SmartGen HGM6110
Bộ điều khiển SmartGen HGM6110.
- Có thể kết nối với thiết bị InteliVision5 hoặc InteliVision8, hoặc các màn hình rời.
- Hỗ trợ các động cơ có bộ điều khiển điện tử (ECU)
- Giải pháp máy phát điện tích hợp và chia sẻ tín hiệu qua bus CAN
Cấu hình tiêu chuẩn khi xuất xưởng:
| Động cơ diesel | Bộ tản nhiệt | Máy phát điện |
| Bộ điều khiển | Bộ điều khiển điện tử | Khung đế và bộ giảm chấn |
| Ống pô | Ống thổi | Bao bì màng nhựa |
| Bộ lọc tách nước nhiên liệu | Bảng điều khiển | Bình nhiên liệu |
| Bộ lọc gió tiêu chuẩn, lọc gió, lọc nhớt | Hướng dẫn, dữ liệu kỹ thuật |
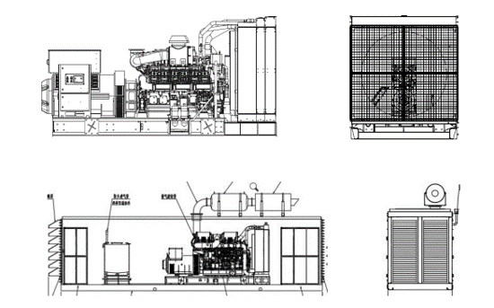
| Loại | Dài x Rộng x Cao (mm) | Trọng lượng (Kg) |
| Không vỏ | 3500x1456x1930 | 4278 |
| Có vỏ | 5000x2100x2500 | 5278 |





Reviews
There are no reviews yet.